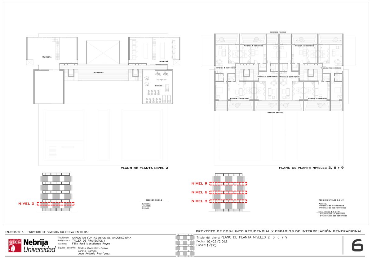
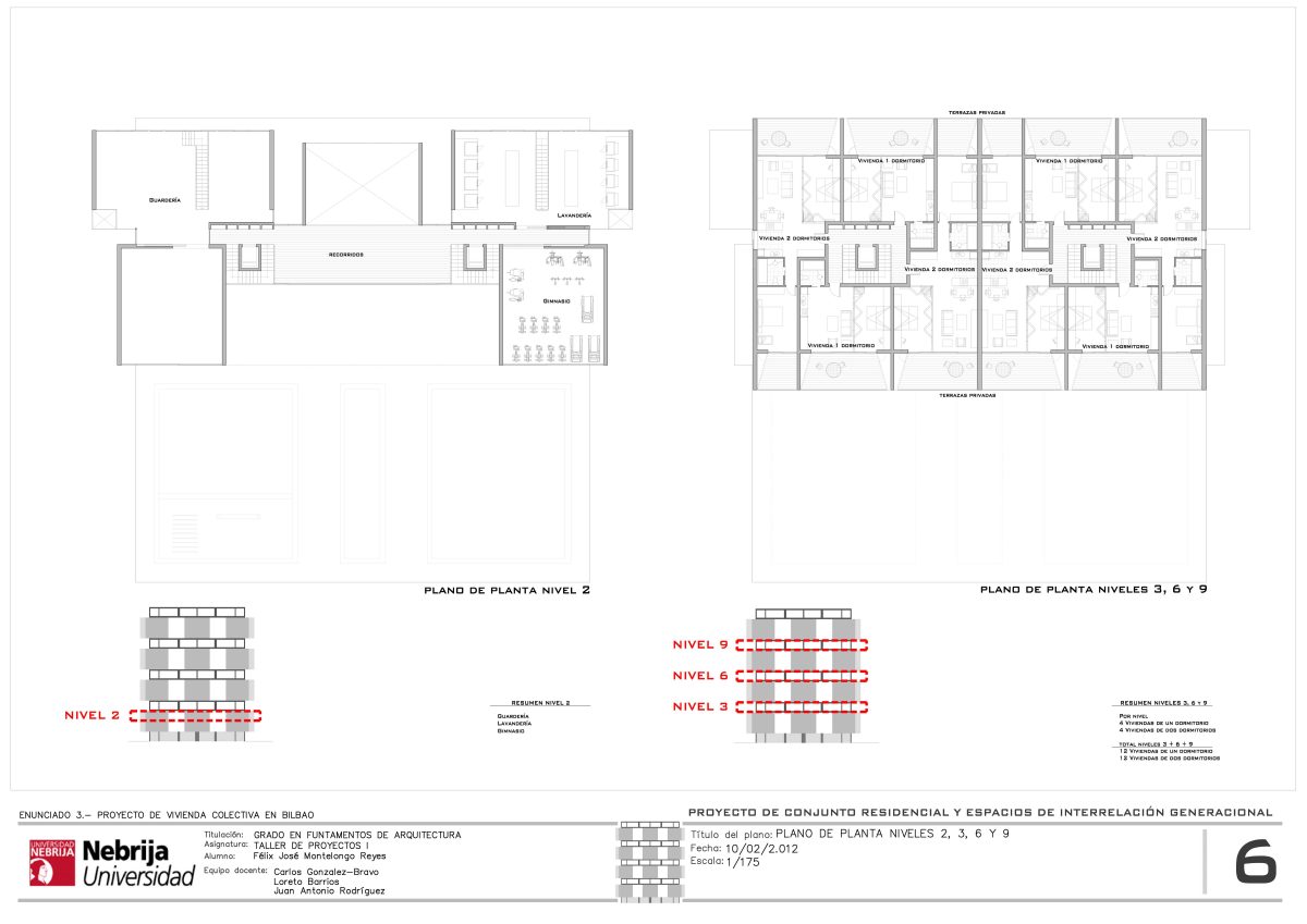
Félix José Montelongo Reyes – Vivienda colectiva en Bilbao 14 marzo, 201212 diciembre, 2014 greyero ALUMNOS / STUDENTS, Ranking, Semipresencial / on line, TODAS