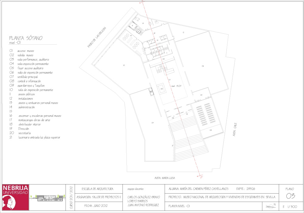
María del Carmen Pérez Castellanos – Museo de Arquitectura en Sevilla 19 julio, 201212 diciembre, 2014 malba ALUMNOS / STUDENTS, Semipresencial / on line, TODAS